Spring  2021  /  Prof.  Kyle  Barker
User:  Graduate  students  and  families  in  need  of  affordable  housing  who  have  children  around  1-6  years  old
Location:  Northeastern  University

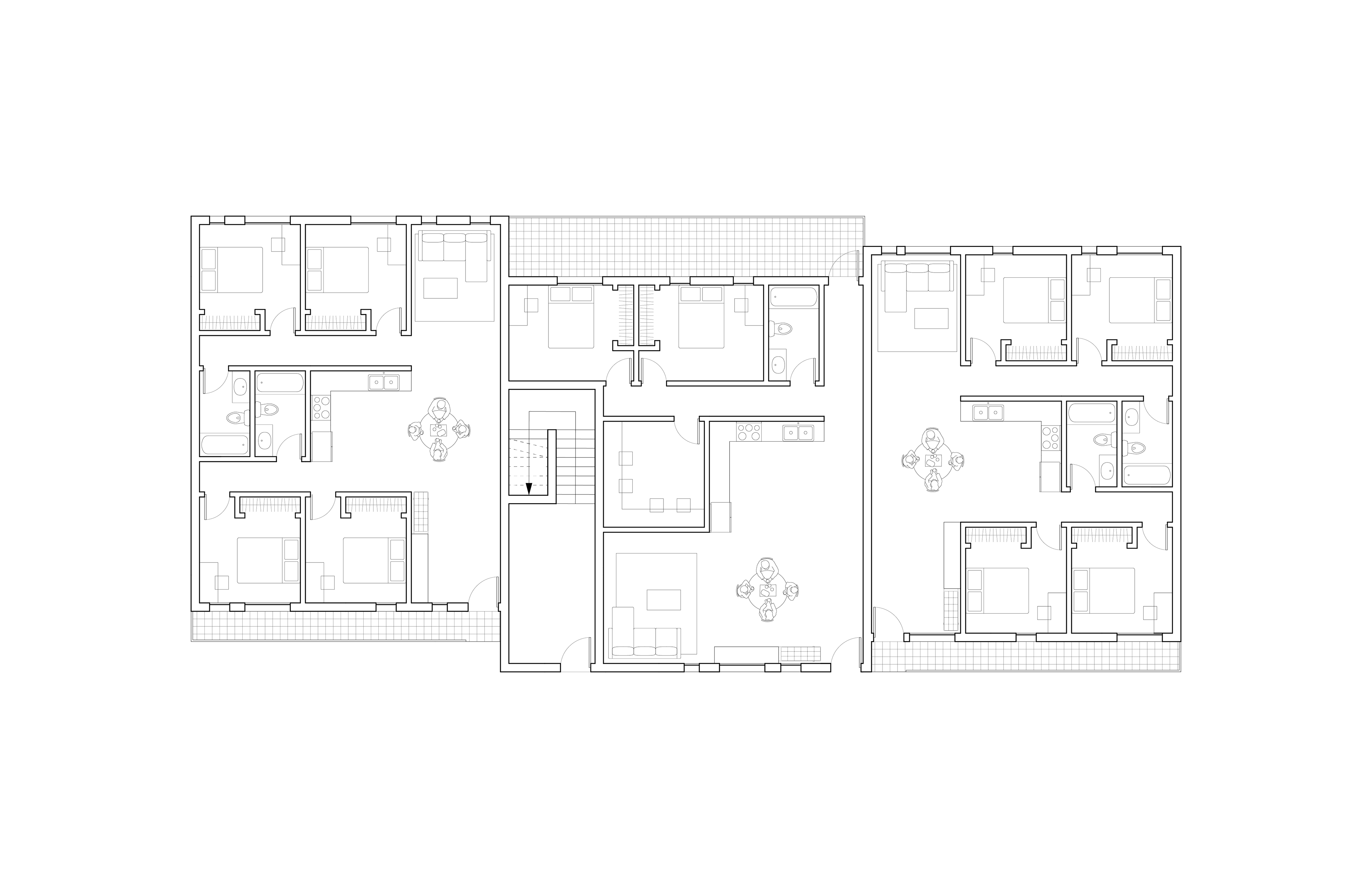
To  reflect  the  diversity  of  families,  including  dynamics  and  sizes,  the  housing  complex  contains  adaptable  units  that  can  house  a  wide  range  of  lifestyles.  Each  housing  module  is  centered  around  a  “kid's  space”  intended  to  act  as  a  communal  child care  center  for  the  families  residing  in  the  module. 
There  are  6  four-bedroom  units  and  2  three-bedroom  units  in  each  module.  The  four-bedroom  units  can  be  shared  by  two  families,  with  private  sleeping  and  bathroom  spaces  for  each  family,  or  the  entire  unit  can  be  used  by  one  larger  family.  The  units  with  three  bedrooms  can  be  used  by  a  medium-sized  family  or  by  a  smaller  family  who  uses  one  bedroom  as  an  office. 
Each  module  contains  9  units  that  surround  the  "kid's  space,"  creating  a  sense  of  security  and  protection.  The  upper-level  two-family  units  are  an  "L"  shape  to  span  two  floors.  The  shape  enables  flexibility  in  the  units  by  creating  two  zones  that  can  be  used  privately  by  two  separate  families  or  used  together  by  one  larger  family.  Every  unit  is  offset  from  all  adjacent  units  on  either  the  front  or  backside  of  the  module.  This  offset  creates  a  balcony  for  each  of  the  units  and  shows  the  complex  sectional  geometry  on  the  exterior  of  the  building. 
By  repeating  3  shapes  in  different  heights,  materials,  and  locations,  separate  play  zones  for  1-2  year  olds  and  3-6  year  olds  are  created  inside  and  out.